
地下室双层卷材防水做法及细部节点做法
由于 100 ㎜厚的 C15 混凝土垫层为非结构体系,而防水层为柔性材料在钢筋混凝土结构底板之间为软弱的夹层,因此 100 ㎜厚的混凝土垫层在整体结构荷载作用下必然发生裂缝,防水层如果紧密粘结在垫层上容易遭受“裂缝反射”破坏;故 2008 版《地下工程防水技术规范》(GB50108—2008,4.3.16 条)明确规定柔性防水卷材在底板部分宜采用“空铺法或点粘法”。
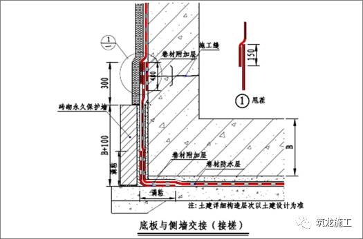
对转角处以及平立面交接处、转折处设置附加层卷材,底板卷材与砖砌永久保护墙之间刷油满粘施工,卷材在临时保护墙部位点粘临时固定,详见下图所示:
卷材收口部位采用砖体进行临时固定,待立墙施工时拆除临时保护,与底板卷材接茬宽度不小于 150mm,立墙卷材建议采用柔性保护。
在后浇带位置增铺与大面同材质的卷材作附加增强层,附加层宽度大于等于500mm,如下示意图所示:
在电梯井及集水坑的阴阳角转折处设置与大面同材质的卷材作附加增强层,附加层宽度大于等于 500mm,如下示意图所示:
外墙立面卷材的收口采用固定压条、射钉固定、并用沥青基密封膏密封,在保证防水系统的安全性能的前提下,对延长防水系统的安全使用寿命起到极大的帮助。本工程建议侧墙收口为室外地坪以上 500mm,柔性防水层收头,如下图所示:
地下室单层卷材防水做法及细部节点做法
平立面交接处、转折处需设置防水专用附加层(材质与大面卷材相同或相溶),附加层卷材与基层需满粘,卷材在临时保护墙部位点粘临时固定,详见下图所示:
卷材收口部位采用砖体进行临时固定,待立墙施工时拆除临时保护,与底板卷材接茬宽度不小于 150mm,立墙卷材建议采用柔性保护。
在后浇带位置增铺与大面同材质的卷材作附加增强层,附加层宽度≥500mm,如下示意图所示:
在电梯井及集水坑的阴阳角转折处设置与大面同材质的卷材作附加增强层,附加层宽度大于等于 500mm,如下示意图所示:
外墙立面卷材的收口采用固定压条、射钉固定、并用沥青基密封膏密封,在保证防水系统的安全性能的前提下,对延长防水系统的安全使用寿命起到极大的帮助。本工程建议侧墙收口为室外地坪以上 500mm,柔性防水层收头,如下图所示:卷材防水系统的终止收口采用特制收口压条,其作用有二,一为取得永久性密封的收口,二为提高与外装饰材料的过渡衔接。
屋面双层卷材防水做法及细部节点做法
屋面女儿墙附加层采用与大面同材质的防水卷材,热熔满粘施工,附加层宽度为平立面均 250mm 宽。卷材防水层收头需超过附加层高度,具体高度视现场情况而定,有压顶的需收头至压顶下端;无压顶的需上翻至女儿墙上表面,女儿墙过高且无压顶时,可根据屋面防水层上部的其它构造层厚度,确保防水层完成的泛水高度不小于 250mm 的部位留设凹槽,将卷材防水层收头压入凹槽内。以上所有收头做法均需用金属压条钉压固定并用密封材料封严(见卷材收口方式)。
大面卷材施工后管根部位需按下图设置附加层,具体做法是先根据管根直径按 A 图将卷材裁剪 12 或 16 等分,并穿过管根热熔满粘至平面;再按 B 图中做法裁剪好后整个包住管道外部,底部裁剪好的部分热熔满粘至平面。
屋面单层卷材防水做法及细部节点做法
种植屋面防水做法及细部节点做法
上一篇文章 喷涂聚脲弹性体底涂粘接机理探究及应用
下一篇文章 聚合法水性聚氨酯生产工艺研究